Однокомнатная квартира 53,96 м2 по ул. Старокубанская 2/23 за 10792000 руб.

Однокомнатная квартира по ул. Старокубанская, 2/23 в Краснодаре
Цена 10 792 000 р. (200 000 р./м2)
Подать заявку на ипотеку
Адрес Старокубанская, 2/23
Этаж 3/18
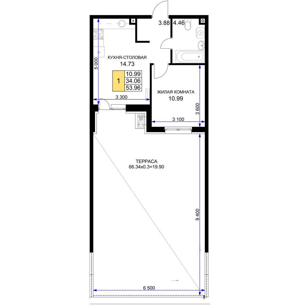
Площадь общая 53,96 м2, жилая 10,99 м2, кухни 14,73 м2
Кол-во комнат Однокомнатная
Продается 1-комн. квартира, площадью 53.96 м2 в монолитно-кирпичной новостройке. Возможен вариант покупки с использованием ипотечных средств, есть рассрочка, возможна покупка с использованием материнского капитала, есть военная ипотека. Жилая площадь 10.99 м2, кухня 14.73 м2, предчистовая отделка, комнаты изолированные. Квартира располагается на 3 этаже 18-этажного дома в ЖК Фонтаны. Застройщик - ГК ССК, сдача дома - IV квартал 2026 года, высота потолков 2.82 м. Дом оборудован пассажирским лифтом, закрытая территория. Отдельная многоуровневая парковка, парковка охраняется. Обеспечение безопасности: видеонаблюдение, противопожарная система. Инфраструктура: детский сад, детские площадки, спортивные площадки, места для отдыха, супермаркет, рестораны, фитнес-центр, пункты бытового обслуживания, коммерческие объекты. Жилой комплекс «Фонтаны» - дом клубного типа. Преимущество заключается в продуманном ландшафте дворов, круглосуточно охраняемой территории, системе видеонаблюдения во дворе. Также для удобства жителей проведен Wi-Fi во дворе, оборудованы безопасные и современные детские площадки, зоны отдыха. «Фонтаны» - уникальный, неповторимый жилой комплекс, воплощающий оригинальные и креативные решения дизайнеров и архитекторов. Дома округлой форме - это придает им легкости, несмотря на массивность постройки. ЖК «Фонтаны» расположен в микрорайоне Черёмушки. Отличная транспортная развязка позволяет быстро и с комфортом добраться до центра, а большое количество зеленых насаждений и парков дает возможность гулять с детьми и наслаждаться прекрасным видом на Кубань. Аккредитованные банки: Сбербанк, Альфа-Банк, ВТБ, Банк Уралсиб, РОССИЯ, Абсолют Банк, Металлинвестбанк, РНКБ, ПСБ, Кубань Кредит, Банк ВБРР, Россельхозбанк. Позвоните и узнайте условия покупки прямо сейчас!
Описание дома
Этажность дома 18
Объявление № 23459973
Дата подачи:
22 октября 2025 г. 1:54
Дата обновления:
22 октября 2025 г. 2:16
Просмотров 4 Хотите продать быстрее?

Продавец
Отдел продаж
Показать номер телефона
Пожаловаться
Комментарии:
Добавить